Australia

# Sold $1,390,000

14 Ingrams Road, West Wodonga, Vic 3690

# Location

Description

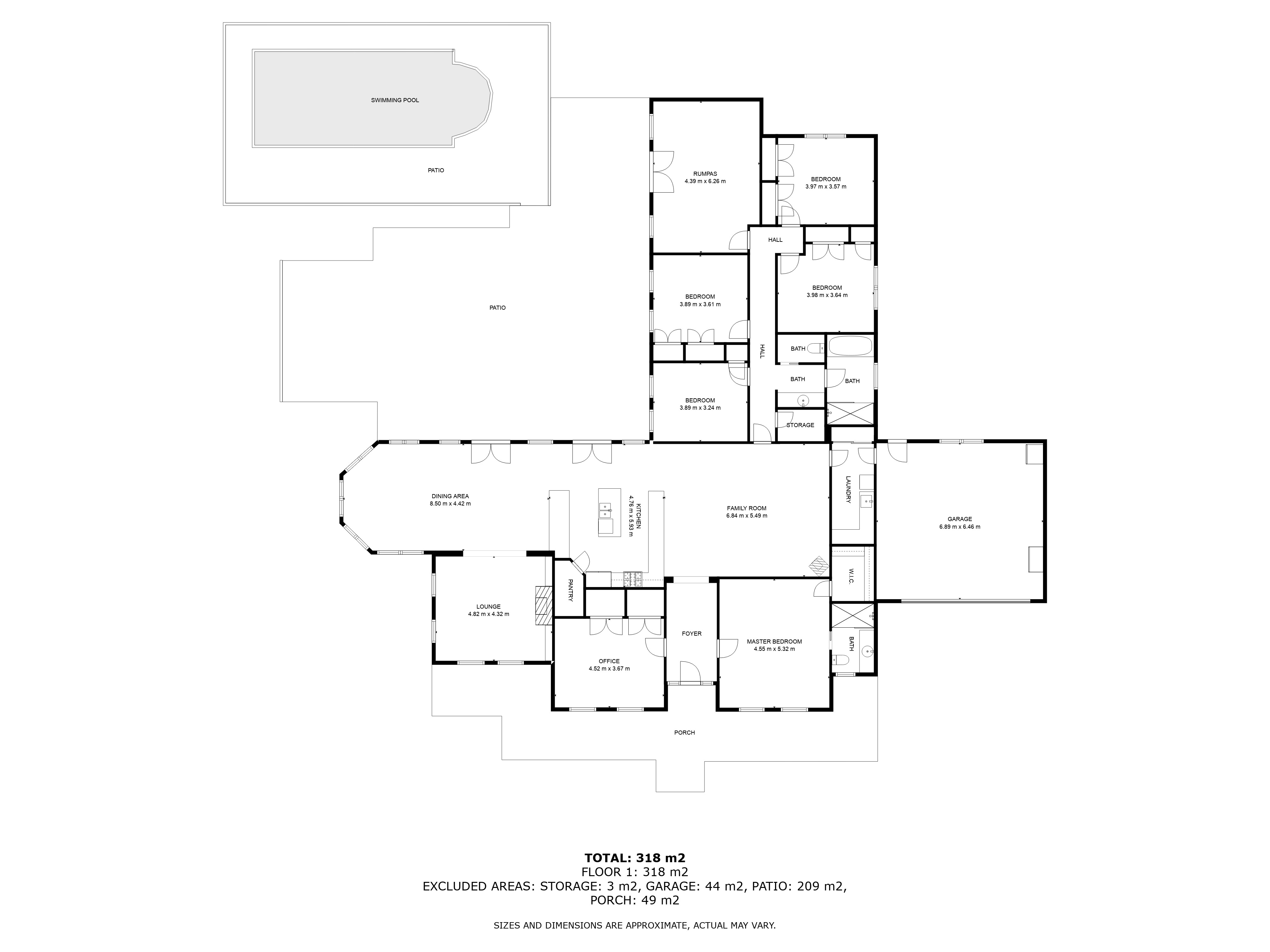
Exquisite Elegance-Tennis Court & Pool on 5466m2 Nestled within a picturesque enclave in tightly held Ingrams Road this exquisite, executive residence presents a rare opportunity for discerning luxury home buyers. A true lifestyle haven, it stands grandly on an expansive 5466m2 (appprox.) allotment, offering both privacy and a sense of boundless space.

The home exudes an ambience of refined elegance with five well-appointed bedrooms and a versatile home office or potential sixth bedroom. The master suite boasts a spacious walk-in robe and ensuite while the opulent central bathroom has been designed with functionality in mind providing a separate vanity and toilet.

Three separate living areas, including a formal lounge with a cosy gas log fire, and a rumpus room flowing to the lavish outdoor entertaining space, cater to all aspects of family life and grand-scale hosting.

The heart of the home is undoubtedly the expansive, open plan living area featuring the gourmet kitchen, a chef's delight with stone benchtops and breakfast bar, quality appliances and an abundance of storage options. The timber flooring flows to the relaxing family room, with gas log fire, while the dining area, bathed in natural light, includes six picture windows and direct access to the outdoor living.

Entertain in style in the impressive undercover alfresco overlooking the sparkling pool and floodlit tennis court, all amidst the backdrop of beautifully established lawns and gardens.

Thoughtfully designed with comfort in mind, the home features ducted evaporative cooling, gas ducted heating, ceiling fans and a log fireplace in the outdoor area. The substantial garage with a workshop includes remote door and internal access while the detached shed offers additional storage solutions.

Providing the perfect blend of tranquil seclusion and access to modern convenience the home is just 6.7km from Wodonga CBD, 5.8km to Wodonga Hospital and 3.1km to the Wodonga Golf Course.

All best efforts have been made to ensure the information provided is true and correct, however we cannot guarantee its accuracy. We accept no responsibility and disclaim all liability in respect to any errors, omissions, inaccuracies or misstatements contained herein. Prospective purchasers should make their own enquiries to verify the information contained in this document.

View More #

Floor Plans

Location

  • Contact the agency

    To request an inspection

  • # Call # Email

Stephen Stewart

Agent Name

Lachlan Stewart

Agent Name

# Report Listing

Looking for a property?

  • Top listings
  • Investment
  • Development
  • Personal home
  • Price reports
  • Suburb reports

Do you own a property?

  • Place a free listing
  • Services for private advertisers
  • Guide to selling your home
  • Insurance
  • Improve the photos of your listing
  • Value your property for free

Are you a real estate proffesional?

  • Publish your agencies properties
  • Already a client? Log into your account
  • Advertising on Australian Real Estate
  • Australian Real Estate data technology for property insights
  • Real Estate courses